特徴
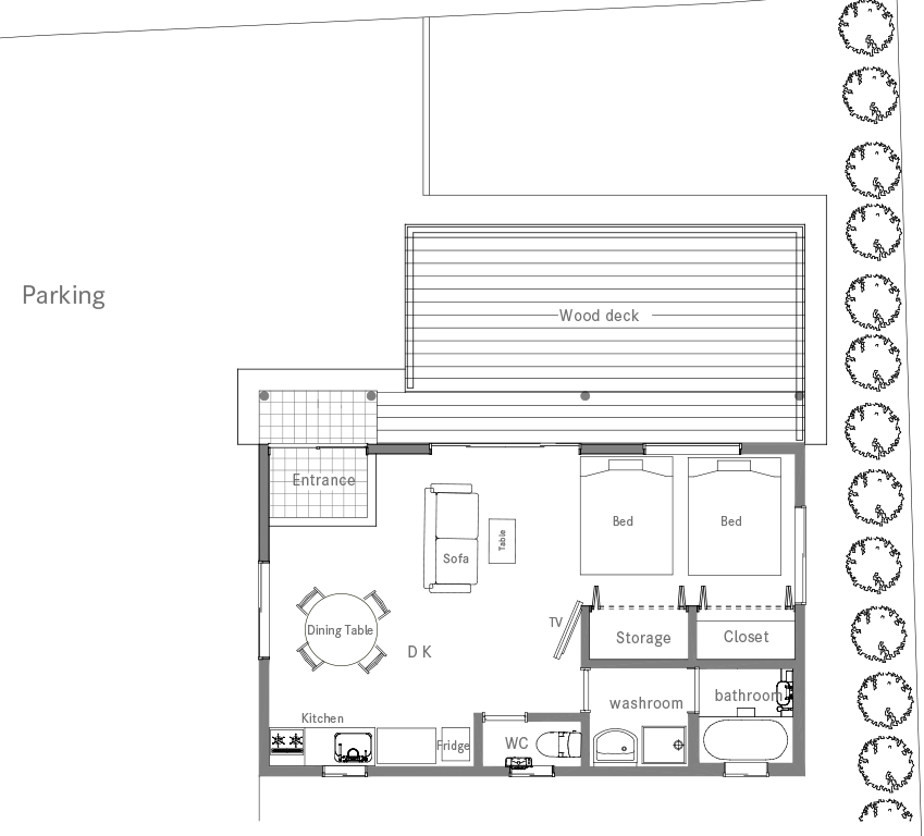
客室の広さは約37㎡。家族4人で過ごすには最適の広さです。シングルサイズのベッドが2台とマットレスが4セットあり、最大6名様まで宿泊が可能です。駐車場は無料で2台まで駐車可能。洗濯機、ガス乾燥機も完備。コンパクトなキッチンと無料でWi-Fi環境を提供しており、テレビでネット動画を見たり、ウッドデッキでバーベキュー、駐車スペースで花火なども楽しみいただけます。隣接するコテージと2棟あわせてご利用することで2世帯家族や多人数の友人・グループでもお楽しみいただけます。
- 広さ(客室面積):37㎡
- タイプ:1棟貸しコテージ
- 間取り:1LDK *見取図参照
- 定員:推奨4名(最大6名)*1ルーム1家族向け
- 駐車場:あり(無料)
チェックイン/アウト
15:00~22:00/~10:00
セルフチェックイン
宿泊予定日の数日前に入室に必要な施設の電子キーまたはキーボックスの番号をお知らせいたします。
入室後、常設タブレットにてチェックイン手続きをお願いします。
設備・サービス
寝具
- シングルベッド2台
- 三つ折り敷きマットレス4台
- 掛け布団
- 枕
アメニティ
- フェイスタオル
- バスタオル
- シャンプー
- コンディショナー
- ボディーソープ
- 歯ブラシ
- ヘアブラシ
- 綿棒
- コットン
- ヘアゴム
- カミソリ
- スリッパ
- 入浴剤
※パジャマ・部屋着はありません。
水回り・浴室・衛生設備
- シャワー
- バスタブ
- 鏡
- ドライヤー
- トイレ(洗浄機能付き)
- 洗面台
- 洗濯機
- ガス乾燥機
キッチン設備
- ガスコンロ
- 冷蔵庫
- 電子レンジ
- 炊飯器
- カセットコンロ
- 焼肉プレート
- カセットガス
- 電気ケトル
調理器具
- フライパン
- 鍋
- 包丁
- まな板
- 菜箸
- お玉
- フライ返し
- ピーラー
- 栓抜き
- トング
食器類・カトラリー
- コップ
- 平皿(大・小)
- ごはん茶碗、お碗
- 子供用ごはん茶碗
- 子供用お椀
- お箸
- スプーン
- フォーク
- 子供用スプーン
- 子供用フォーク
その他
*調味料はありません。
食事(朝食・夕食)
なし *近隣飲食施設を案内
アクセス
- 沖縄県本部町備瀬344 海洋博コテージ2号棟
- オキナワサン (飲食店)の手前を左折、90m先右折、20m先右側
- 備瀬のフクギ並木まで徒歩1分
- 沖縄美ら海水族館まで徒歩10分
- エメラルドビーチ(無料)まで徒歩5分
- 伊江島を望む東シナ海まで徒歩3分
- パワースポット(備瀬お宮・ワルミ・樹齢300年・夫婦フクギ・ガジュマル)








