
特徴
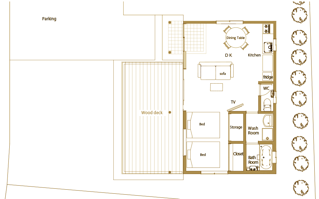
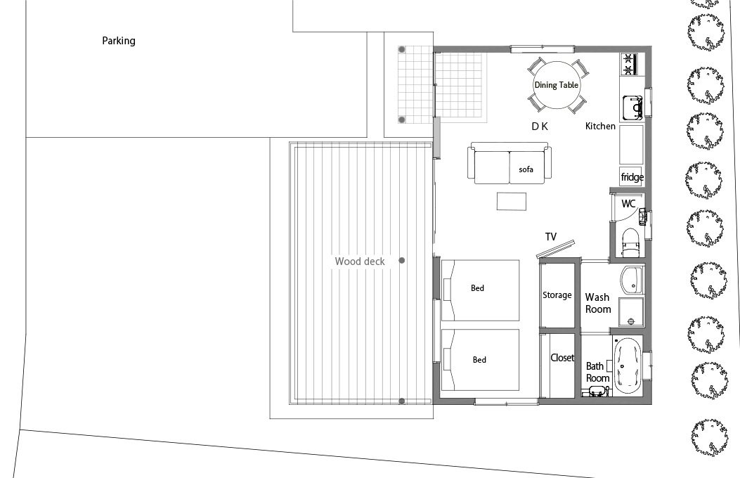
客室の広さは約37㎡。家族4人で過ごすには最適の広さです。シングルサイズのベッドが2台とマットレスが4セットあり、最大6名様まで宿泊が可能です。駐車場は無料で2台まで駐車可能。洗濯機、ガス乾燥機も完備。コンパクトなキッチンと無料でWi-Fi環境を提供しており、テレビでネット動画を見たり、ウッドデッキでバーベキュー、駐車スペースで花火なども楽しみいただけます。隣接するコテージと2棟あわせてご利用することで2世帯家族や多人数の友人・グループでもお楽しみいただけます。







チェックイン/アウト
Checkin/Checkout
15:00~22:00/~10:00
セルフチェックイン
Self Check in
宿泊予定日の数日前に入室に必要な施設の電子キーまたはキーボックスの番号をお知らせいたします。
入室後、常設タブレットにてチェックイン手続きをお願いします。
設備・サービス
Facilities/Services
寝具
シングルベッド2台、三つ折り敷きマットレス4台、掛け布団、枕
アメニティ
フェイスタオル、バスタオル、シャンプー、コンディショナー、ボディーソープ、歯ブラシ、ヘアブラシ、綿棒、コットン、ヘアゴム、カミソリ、スリッパ、入浴剤
*パジャマ・部屋着はありません。
キッチン設備
ガスコンロ、冷蔵庫、電子レンジ、炊飯器、カセットコンロ、焼肉プレート、カセットガス、電気ケトル
水回り・浴室・衛生設備
シャワー、バスタブ、鏡、ドライヤー、トイレ(洗浄機能付き)、洗面台、洗濯機、ガス乾燥機
インターネット関連
接続無料 WiFi (無線LAN)
その他設備
エアコン、テレビ(衛生放送・インターネット接続あり)
調理器具
フライパン、鍋、包丁、まな板、菜箸、お玉、フライ返し、ピーラー、栓抜き、トング
食器類・カトラリー
コップ、平皿(大・小)、ごはん茶碗、お碗、子供用ごはん茶碗、子供用お椀
お箸、スプーン、フォーク、子供用スプーン、子供用フォーク
その他
*調味料はありません。
ペット同伴について
原則禁止。但し特別な許可がある場合を除きます。
禁煙・喫煙
指定場所以外での喫煙禁止
禁止事項
「利用規則」記載
注意事項
「利用規則」記載
食事(朝食・夕食)
なし *近隣飲食施設を案内
アクセス
Access
- 沖縄県本部町備瀬344 海洋博コテージ2号棟
- オキナワサン (飲食店)の手前を左折、90m先右折、20m先右側
- 備瀬のフクギ並木まで徒歩1分
- 沖縄美ら海水族館まで徒歩10分
- エメラルドビーチ(無料)まで徒歩5分
- 伊江島を望む東シナ海まで徒歩3分
- パワースポット(備瀬お宮・ワルミ・樹齢300年・夫婦フクギ・ガジュマル)

